TRITON 19" jednodílný rozvaděč 9U/600mm
TRITON 19" jednodílný rozvaděč 9U/600mm
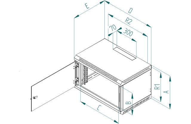
Rozvaděč Delta B je celosvařený nástěnný jednodílný rozvaděč s celoskleněnými dveřmi, které je možné díky masivním pantům otevřít pod úhlem téměř 180°. Důležitou součástí výrobku jsou otvory pro kabely, které jsou umístěny na horní a dolní stěně. Další dva otvory jsou umístěny na zadní stěně rozvaděče. Otvory jsou zaceleny vylamovacími záslepkami, které je možné vylomit s pomocí např. šroubováku.
19“ zařízení se instalují na vertikální lišty, které je možné plynule natavit podle potřeby do hloubky těla rozvaděče. Díky perforaci je zajištěna přirozená cirkulace vzduchu a chlazení komponentů.
Přesné rozměry a další technické údaje jsou uvedeny níže (hodnoty R1 a R2 označují rozteče montážních otvorů pro zavěšení rozvaděče na zeď). Maximální zatížení rozvaděče je 30 kg
výška 9U, hloubka 600mm
Hmotnost – 21,4 kg
Příbal:
Klíč - přední dveře 2x
Vrut 6x50 4x
Podložka 6,6 4x
Hmoždinka 10 4x
Plastová podložka 8x
Plovoucí matice M6 8x
Šroub M6x16 8x
Protiprachová záslepka 1x





